Aluminum Profile Powder Coating Line
ST-APCL-L6320
Price: USD100000~200000
Get Quote PDF
Diverse and Stable Colors: Available in a wide range of customized colors with low color deviation, vibrant hues, and high gloss to meet various design needs.
High-Quality Coating Finish: The coating achieves uniform thickness, with one-time film formation reaching 50–80 μm or even 100–300 μm.
Superior Environmental Performance: Waste materials can be recycled and reused, lowering resource waste and production costs.
High Efficiency and Energy Savings: Utilizing one-time film-forming technology, production efficiency increases by 30%–40%.
Automated Powder Coating Systems:
For High Volume and Superior Quality When your production requires coating large quantities of components, an automated powder coating system could be the ideal solution for enhancing your operational efficiency.
Rely on ShengTai Coating Systems to advance your outcomes through precise engineering and expert support.
Coating solutions for Industry

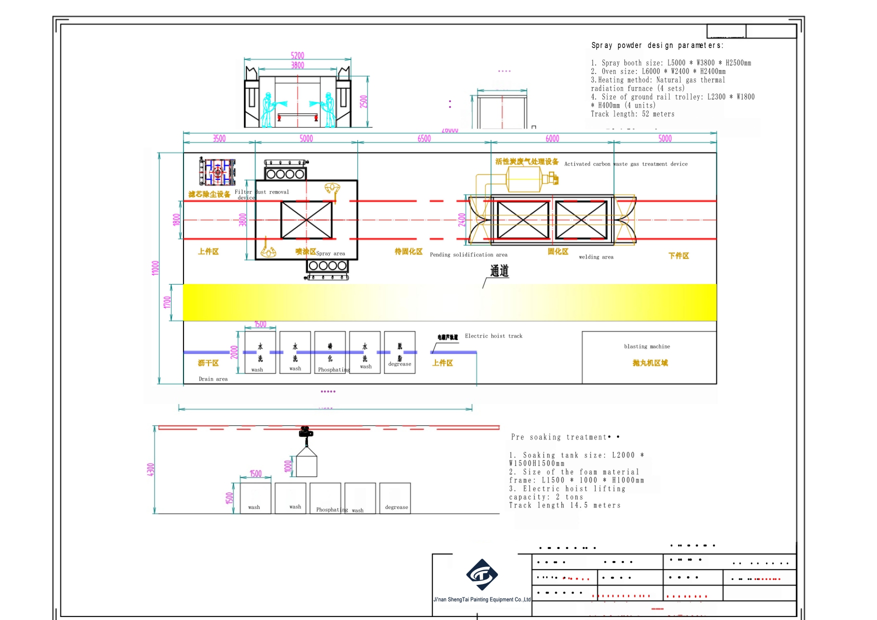
Process Flow:
Loading → Moisture Drying → Automatic Spraying → Manual Touch-up → Powder Curing → Workpiece Cooling → Unloading
Automatic Coating Equipment for Diverse Materials:
Suitable for metal, plastic, glass, crafts, wood, and more. Receive customized configurations with our Automatic Powder Coating Line, designed to meet your specific application requirements. We are dedicated to delivering professional automated powder coating machinery solutions tailored to every customer.
Take the following draft for example:

| Aluminum Profile Powder Coating Line ST-6320 | |||
| Key attributes | |||
| Automatic Powder Spray Booth | 6.2m*1.9m*3.5m | ||
| Large Cyclone Recovery System | 22kW/12-core indoor discharge | ||
| Powder Curing Tunnel | 55m*1.0m*3.5m | ||
| Workpiece Preheating Tunnel | 25m*1.0m*3.5m | ||
| Heating Device | 500,000/340,000 kcal Gas Heating Unit | ||
| Hot Air Circulation | Sound-insulated heat preservation fan 11/5.5kw | ||
| Conveying Device | Conveyor Chain QXG250 | ||
| Spray System | Automatic Spray Gun | ||
| Automatic Reciprocating Lifter | Stroke 2.5 meters | ||
| Control System | PLC Touch Screen | ||
| Air Curtain Heat Insulation Device | 3kW | ||
| Curing Fume Collection and Exhaust System | |||
| (1) Collection Hood | 1000mm*1000mm | ||
| (2) Duct, Elbow, and Fittings | φ300mm | ||
| Induced Draft Fan | 0.75kW Axial Flow | ||
| Description | |||
| Workpiece Name | Aluminum Profile | ||
| Overall Workpiece Dimensions | L6.0m*W0.3m*H2.0m | ||
| Process Chain Speed | 0-4m (Frequency Adjustable) | ||
| Hanging Method | Multiple Points, Multiple Pieces | ||
| Process Flow: Loading → Moisture Drying → Automatic Spraying → Manual Touch-up → Powder Curing →Workpiece Cooling → Unloading | |||
| Total equipment power | approx. 60kW (excluding air compressor power) | ||
English
Español
Русский
عربي
Türkçe
Deutsch
Polski
Français
Italiano
Tiếng Việt



















